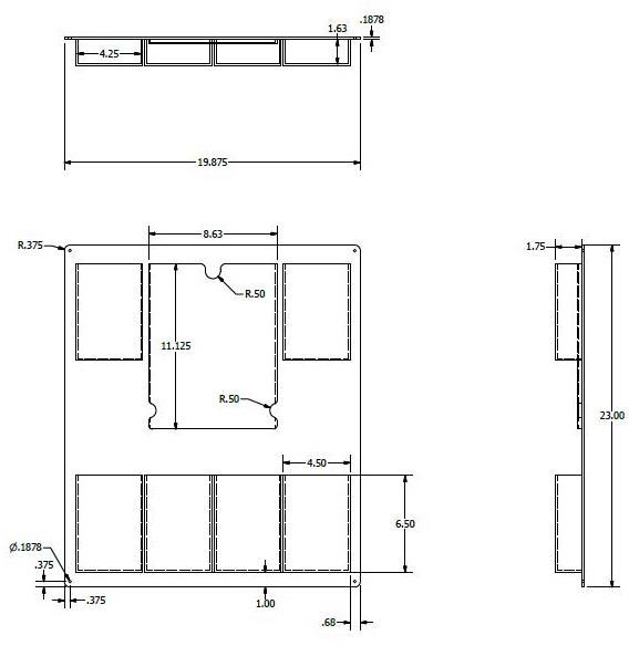
Sign Holders Sign Holders Literature Holder Product ID: 810003-3140 Description: Wall Mount Literature Holder includes 8 ½” x 11” sign holder and 6 brochure pockets. Length: 23.00″ Width: 19.88″ Depth: 1.75″ Color: Clear Material: Acrylic Browse Our Product Line Categories COVID-19 & SanitationConvenience StoreGrocery and RetailMerchandisersSecurity & Asset Protection